星空体育·星空官方网站-星空体育(中国)

ELEVATOR DOOR SYSTEM电梯门系统

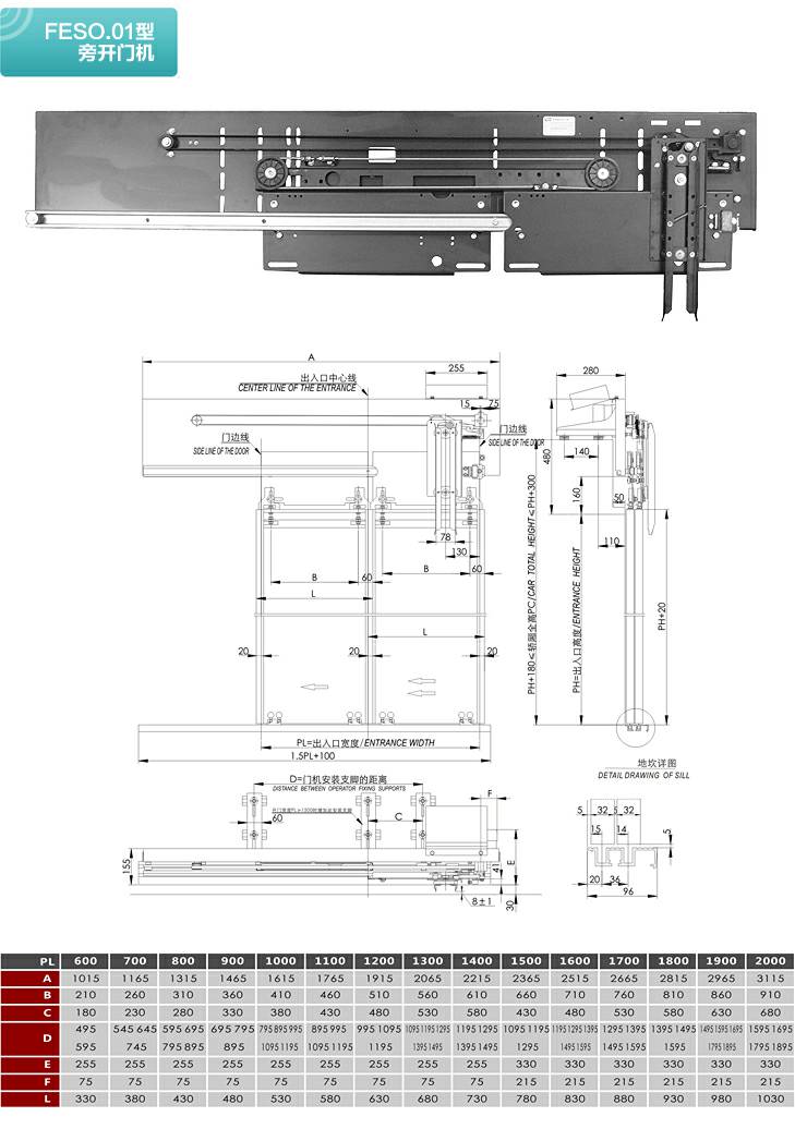
FESO.01型旁开门机